Дом по адресу Новосибирск, Бориса Богаткова улица, за 110000000 р.

Адрес Новосибирск, Бориса Богаткова улица
Цена 110 000 000 р.
Площадь дома 895 м2, участка 4,38 м2
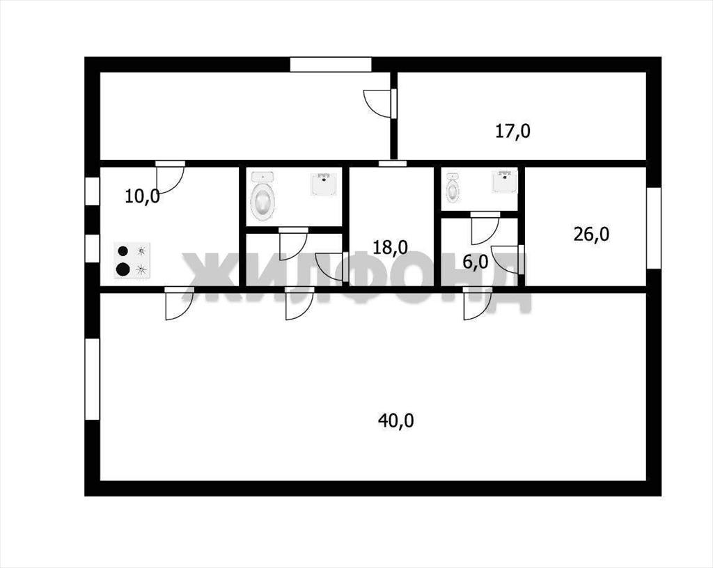
Дом по ул. Бориса Богаткова. Общей площадью: 895.00 кв.м. Отличное помещение для проживания и бизнеса! Хорошее место, в доступности магазины, кафе, школы и детские сады, проходимость супер. Отличный выбор для ваших смелых идей и решений! Отопление газовое. Продаю дом в Новосибирске на улице Бориса Богаткова, дом 121. Общая площадь дома составляет 895 квадратных метров, расположен на 3 этажах. Дом построен из качественных материалов и отличается прочностью и долговечностью. В доме установлена современная система отопления и вентиляции, что обеспечивает комфортное проживание в любое время года. В доме имеется просторная кухня, где можно собираться всей семьей за обедом или ужином. Также в доме есть большая гостиная , где можно проводить время в кругу друзей или семьи. Всего в доме 10 комнат, которые можно использовать под спальни, кабинеты или гостевые комнаты. Для удобства жильцов на каждом этаже имеются санузлы. На первом этаже также расположена просторная гостевая комната с отдельным входом, что позволяет принимать гостей, не нарушая приватность основного жилья. В шаговой доступности расположены все необходимые объекты инфраструктуры: магазины, школы, детские сады, аптеки, банки и т.д. Также рядом с домом есть парк, где можно проводить время на свежем воздухе. Для автолюбителей имеется гараж на две машины, а также парковочные места на территории дома. Для любителей активного образа жизни рядом с домом расположены спортивные клубы и фитнес-центры. Дом идеально подойдет для большой семьи, которая ценит комфорт и уют. Также он может быть использован под бизнес-цели, например, под мини-гостиницу или офисное здание. Цена на дом составляет 110 000 000 рублей, что является отличной инвестицией в будущее. Не упустите возможность приобрести этот уникальный объект недвижимости в престижном районе Новосибирска. Звоните и приходите на просмотр уже сегодня! Возможен обмен на вашу недвижимость. Возможна продажа в рассрочку. При звонке, пожалуйста, сообщите номер варианта - JV008054171843
Объявление № 23458217
Дата подачи:
22 октября 2025 г. 1:35
Дата обновления:
22 октября 2025 г. 1:35
Просмотров 12 Хотите продать быстрее?

Продавец
Артём Георгиевич
Показать номер телефона
Пожаловаться
Комментарии:
Добавить